Casa entrega inmediata| 3 recámaras| Dentro de privada

Conkal, Conkal, Yucatán

  • Casa en condominio
  • 3 recámaras
  • 3 baños
  • 264 m² de construcción
  • 312 m² de terreno
  • $4,380,000 En Venta

Descripción

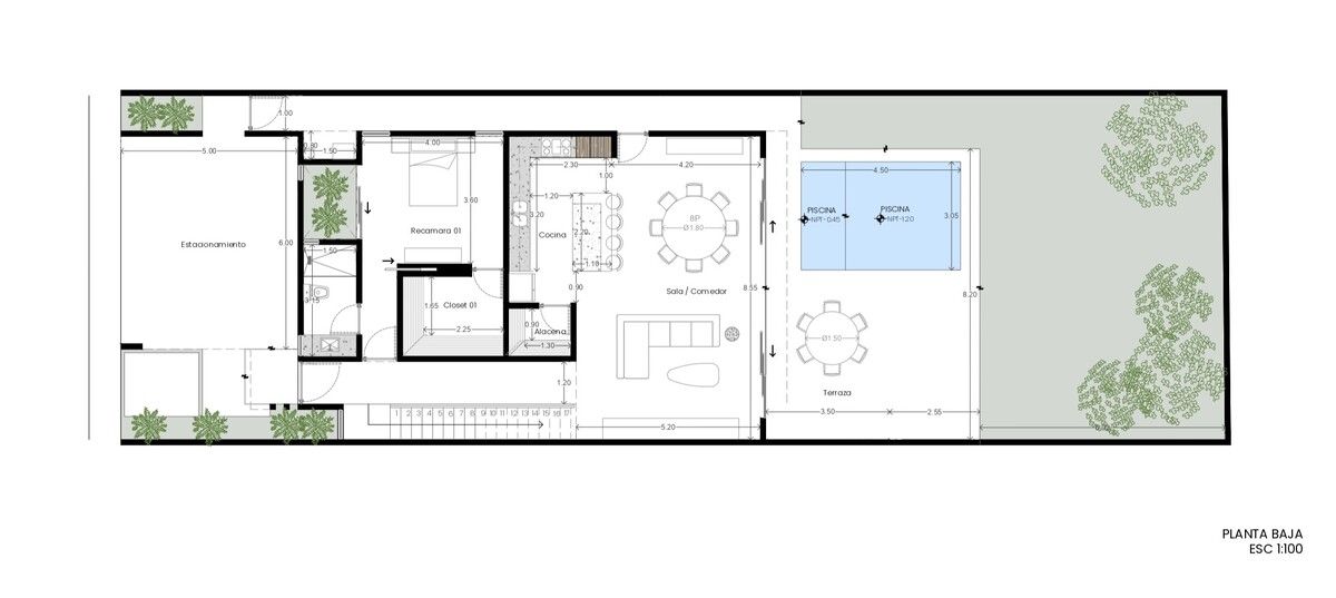
Planta baja:
-Garage techado para 2 vehículos.
-Baño completo (da servicio a visitas y habitación de planta baja).
-Habitación con clóset vestidor y jardín interno.
-Sala-comedor.
-Cocina.
-Alacena.
-Pasillo de servicio.
-alberca.
-Jardín.

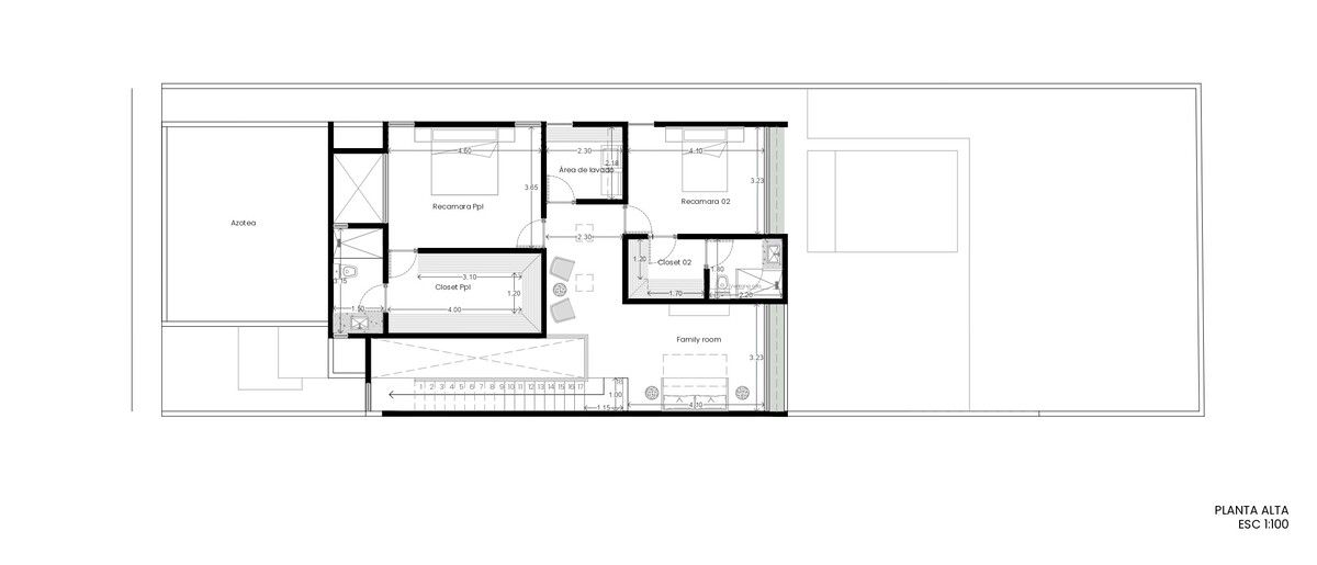
Planta alta:
-Family room con vista al jardín.
-Vestíbulo.
-Habitación secundaria con clóset vestidor y baño completo, vista al jardín.
-Área de lavado cerrada.
-Habitación principal con clóset vestidor y baño completo, vista al jardín interno.

Orientación Sur-Norte.

Formas de pago: Recurso propio y crédito bancario.

Si te gustó esta propiedad, contáctanos y nosotros te asesoramos.

El precio total se determinará en función de los montos variables de conceptos de crédito y notariales que deben ser consultados con los promotores de conformidad con lo establecido en la NOM-247-SE-2021
___

Información de comercialización:
-Inmobiliaria Yuuma con razón social YUMA SERVICIOS PROFESIONALES Y PROYECTOS.
-Visítanos previa cita: Calle 15a #364 entre 14 y 16a colonia Paraíso Maya 97134 Mérida, México.
-Sugerencias a: Jorgewalter@inmobiliariayuuma.com
-Teléfono: 999 902 6234
-Número de registro de contrato de adhesión ante PROFECO 397/2023
-Aviso de privacidad en: https://inmobiliariayuuma.com/privacidad

Características

Exterior
  • Facilidad para estacionarse
  • Jardín
General
  • Fraccionamiento privado
  • Recámara en planta baja
Recreación
  • Alberca

Detalles

ID:EB-RZ2423
Tipo:Casa en condominio
Precio de venta: $4,380,000
Recámaras:3
Baños:3
Estacionamientos:2
Construcción:264 m²
Terreno:312 m²